Stan deweloperski | 90,86m2 | 5 Pokoi | Bliźniak |

Dom (Bliźniak) na sprzedaż
569 000,00 PLN , Pow. 90,86 m2
Drukuj ofertę
Drukuj ofertę
Typ nieruchomości:
Dom
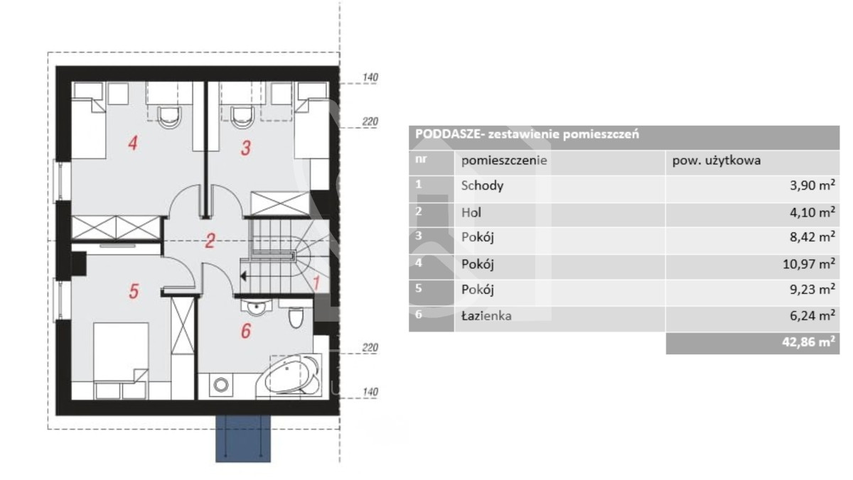
Powierzchnia:
90,86 m2
Typ transakcji:
sprzedaż
Liczba pokoi:
5
Lokalizacja:
Przewóz , Sportowa
Rok budowy:
2025
Piętro:
0 na 1
Numer oferty:
421749
Powierzchnia działki:
401 m2
Cena za m2:
6 262,38 PLN

Przedstawiam Państwu na sprzedaż dom piętrowy w zabudowie bliźniaczej. Usytuowany jest na działce o powierzchni 401 m² w miejscowości Przewóz tuż obok przejścia granicznego z Niemcami.

Najważniejsze atuty:
Dom o powierzchni użytkowej 90,86 m².
Działka: 401m²

Nieruchomość składa się z:
salonu z aneksem kuchennym,
czterech sypialni,
dwóch łazienek,
korytarza,
wiatrołapu,
tarasu.

Stan techniczny:
Dom w stanie deweloperskim, wybudowany z pustaka Porotherm, z dachem na konstrukcji drewnianej krytym dachówką, oknami trzyszybowymi oraz ociepleniem 15 cm.
Kominek klinkierowy z wkładem.
Podłączony prąd i woda, na działce szambo 8 m³.



Lokalizacja:
Dom funkcjonalnym układem wnętrz. Położenie w spokojnej, zielonej okolicy. W niedalekiej odległości sklepy, przedszkole oraz tereny spacerowe.

Dodatkowe udogodnienia:
możliwość instalacji paneli fotowoltaicznych,
możliwość wykończenia domu ,,pod klucz"

Dostępne media:
prąd, woda, szambo

Ogrzewanie:
Ogrzewanie podłogowe z pompą ciepła Atlantic


To idealna propozycja dla osób ceniących ciszę, prywatność, dobrą lokalizację oraz możliwość wykończenia wg własnej aranżacji..

Zapraszam na prezentację !



----------------------------------------------------------
Niniejsze ogłoszenie nie stanowi oferty handlowej w rozumieniu art. 66 §1 Kodeksu cywilnego.
Informacje w nim zawarte mają charakter wyłącznie informacyjny i mogą ulec zmianie.
Nieprawidłowy adres E-mail